Active
Listed by Heather Heigis of Heigis Real Estate LLC.

12 Fire Road 9Strafford, NH 03884Price: $550,000

  • Price: $550,000
  • Est. Mortgage of $/month
  • 7 Days on Market
$
$
%
$/month over payments
Federal 30-year interest rate: 6.37% last updated on Apr 9, 2026
* All Figures are estimates. Check with your bank or proposed mortgage company for actual interest rates.
This product uses the FRED® API but is not endorsed or certified by the Federal Reserve Bank of St. Louis.
  • $550,000List Price
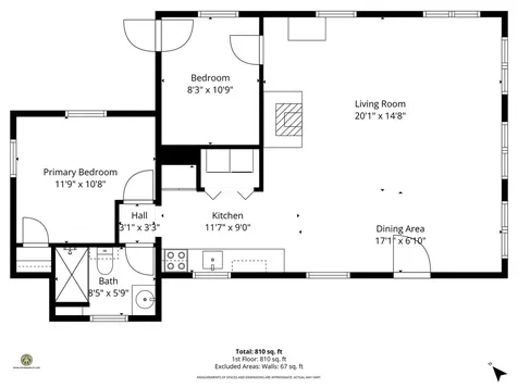
  • 2Bedrooms
  • 1Bathrooms
  • 1.2Acreage
  • 864Square Feet

Listing Tools

Tucked away with beautiful views overlooking Bow Lake, this charming property offers the perfect blend of privacy, outdoor space, and lake life. Enjoy your morning coffee or evening sunsets from the expansive deck while taking in the sweeping water views. With your own dock, you'll have easy access to boating, kayaking, swimming, and all that Bow Lake has to offer. Inside, the open-concept layout creates a bright and inviting atmosphere, making the home feel larger and perfect for entertaining family and friends. The spacious living area flows nicely into the kitchen and dining spaces, all designed to capture the beautiful views outside. This home offers 2 bedrooms, 1 bath, and single-level living for easy maintenance. One of the standout features is the large yard behind the home, plus shared land in front across street, providing plenty of room for gatherings, yard games, gardening, or simply relaxing outdoors. Ample parking makes hosting guests easy, whether they are visiting for the day or spending the weekend at the lake. A wood deck, patio, unfinished basement for storage, and dock complete this special Bow Lake getaway.

Property Details

Interior Features

Exterior Features

Utilities and Appliances

Community

Broker Reciprocity 

Copyright 2026 PrimeMLS, Inc. All rights reserved. This information is deemed reliable, but not guaranteed. The data relating to real estate displayed on this display comes in part from the IDX Program of PrimeMLS. The information being provided is for consumers’ personal, non-commercial use and may not be used for any purpose other than to identify prospective properties consumers may be interested in purchasing. Data last updated April 13, 2026 12:55 PM EDT

 

Hi there! How can we help you?

Contact us using the form below or give us a call.

Send Us A Message:

I agree to receive marketing and customer service calls and text messages from Jenifer Parker. To opt out, you can reply 'stop' at any time or click the unsubscribe link in the emails. Consent is not a condition of purchase. Msg/data rates may apply. Msg frequency varies. Privacy Policy.

Do not fill in this field:

This site is protected by reCAPTCHA and the Google Privacy Policy and Terms of Service apply.

Hi there! How can we help you?

Contact us using the form below or give us a call.

Send Us A Message:

Do not fill in this field:

This site is protected by reCAPTCHA and the Google Privacy Policy and Terms of Service apply.

Hi there! How can we help you?

Contact us using the form below or give us a call.

Send Us A Message:

Do not fill in this field:

This site is protected by reCAPTCHA and the Google Privacy Policy and Terms of Service apply.

Do not fill in this field:

This site is protected by reCAPTCHA and the Google Privacy Policy and Terms of Service apply.

Do not fill in this field:

This site is protected by reCAPTCHA and the Google Privacy Policy and Terms of Service apply.

Do not fill in this field:

This site is protected by reCAPTCHA and the Google Privacy Policy and Terms of Service apply.

$

Do not fill in this field:

This site is protected by reCAPTCHA and the Google Privacy Policy and Terms of Service apply.

Map Location

ocean sunset background ocean sunset background

Map Location

Driving Directions

ocean sunset background

Do not fill in this field:

I agree to receive marketing and customer service calls and text messages from Jenifer Parker. To opt out, you can reply 'stop' at any time or click the unsubscribe link in the emails. Consent is not a condition of purchase. Msg/data rates may apply. Msg frequency varies. Privacy Policy.

This site is protected by reCAPTCHA and the Google Privacy Policy and Terms of Service apply.

Schedule A Visit

Schedule a Visit

I agree to receive marketing and customer service calls and text messages from Jenifer Parker. To opt out, you can reply 'stop' at any time or click the unsubscribe link in the emails. Consent is not a condition of purchase. Msg/data rates may apply. Msg frequency varies. Privacy Policy.

This site is protected by reCAPTCHA and the Google Privacy Policy and Terms of Service apply.